Shop by Store
Saved Lists
Catalogs
Order History & Status
Invoices
Customer Portal
Register OR Sign in
Welcome to the Customer Portal
Something went wrong, please try again or contact us at sales@westsidebmc.com
Username
Password
Remember Me
Sign in
Register for an Account
Forgot password?
0
My Cart
$-.--
Shop by Category
Access Doors
Acoustical
All Acoustical
Acoustical Accessories
Acoustical Other
All Acoustical Other
Grid
Tile
Armstrong
All Armstrong
Armstrong Grid
Armstrong Tile
Certainteed
All Certainteed
CertainTeed Grid
CertainTeed Tile
Chicago Metallic
All Chicago Metallic
Chicago Metallic Grid
Rockfon Tile
USG
All USG
USG Grid
USG Tile
Caulking & Adhesives
Drywall
All Drywall
Fire Rated
Mold Resistant
Regular
Shaft Wall
Sheathing
Specialty
Tile Backer
EIFS & Stucco
All EIFS & Stucco
Air Moisture Protection
Cement
EIFS Mesh
EIFS Other
EPS Foam
Portland Cements
Trims & Accessories
Parex Base Coat & Adhesives
Parex Coatings
Parex Finishes
Parex Other
Stucco Base Coat & Adhesives
Stucco Finishes
Fasteners
All Fasteners
Anchors
Clips
Nails
Nuts & Bolts
Screws
Shots & Pins
Staples
Tapes & Adhesives
Firestop
FRP
All FRP
Trims & Adhesives
Wall & Ceiling Panels
Hardware
Insulation
All Insulation
Foil/FSK
Kraft Faced
Mineral Wool
Other
Rigid
Unfaced
Joint Treatment
All Joint Treatment
All Purpose
Beads & Trim
All Beads & Trim
Fry Reglet
Metal
Paper Faced
Plastic
Tape-On
Joint Compound
Other
Plaster
Specialty
Tape
Textures
Lumber
All Lumber
Dimensional
Plywood
Trims & Accessories
Manufactured Stone
All Manufactured Stone
Manufactured Stone Adhesives
Safety
All Safety
Fall Protection
Gloves
Hard Hats
Safety Apparel
Safety Glasses
Safety Supplies
Vests & Jackets
Steel
All Steel
Heavy Gauge Steel
All Heavy Gauge Steel
Joists
Stud
Track
Light Gauge Steel
All Light Gauge Steel
Stud
Track
Shaft Wall/Separation
All Shaft Wall/Separation
Stud
Track
Specialty Steel
Steel Accessories
All Steel Accessories
Angles
Clips
Cold Rolled Channels
Fire Track
Flat Straps
Flex Track
Furring
Metal Lath
Other
Security Mesh
Slotted Track
Surface Protection
Tools
All Tools
Automatic Taping Tools
Blades & Bits
Cleaning & Surface Protection
Drywall Tools
EIFS & Stucco Tools
Electrical & Lighting
Hand Tools
Lasers & Leveling
Measuring & Marking
Organizing & Storage
Paint & Caulking
Parts & Repair Kits
Powder Actuated Tools
Power Tools
Sanding
Stilts, Scaffolds, Ladders
Tool Accessories
Products
Articles
Services
About Us
Locations
Quick Order
PART #
QUANTITY
0
Shop by Store
Sign In
Register for an Account
Shop by Category
Access Doors
Acoustical
Caulking & Adhesives
Drywall
EIFS & Stucco
Fasteners
Firestop
FRP
Hardware
Insulation
Joint Treatment
Lumber
Manufactured Stone
Safety
Steel
Surface Protection
Tools
Products
Articles
Services
About Us
Locations
Quick Order
Home
Search:
WA 0812 2782 5310 Biaya Rincian Pasang Batu Sikat Untuk Lantai Baturetno Wonogiri
Search:
WA 0812 2782 5310 Biaya Rincian Pasang Batu Sikat Untuk Lantai Baturetno Wonogiri
Filters
Categories
Steel
(4)
Product Brands
Sunset Ladder
(1)
Length
11 ft
(1)
16 ft
(1)
29 ft
(1)
30 ft
(2)
Width
8 in
(5)
Steel Gauge
14
(4)
16
(1)
Steel Mil
54
(1)
68
(4)
Steel Flange
1 5/8 in
(3)
2 in
(1)
3 in
(1)
Filter
100
Results
List View
Grid View
Part
OBC8216MS
MISSION SLUMP CAP 8 X 2 X 16
Calculating price...
-
+
Add to Cart
Part
OBC8416MSPC
MISSION POUR CAP 8 X 4 X 16
Calculating price...
-
+
Add to Cart
Part
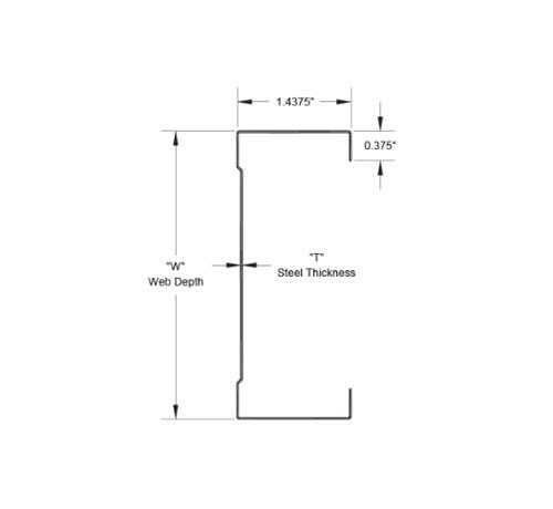
800S300-68-49
8"X 49' STUD 14GA 3" FLANGE
Calculating price...
-
+
Add to Cart
Part
OBC648LS
LAPAZ SLUMP 6 X 4 X 8
Calculating price...
-
+
Add to Cart
Part
800S162-68-1408U
8"X 14'8" STUD 14GA 1-5/8" FLANGE UNPUNCHED
Calculating price...
-
+
Add to Cart
Part
PPEXH125A
CAMLOCK 1 1/4" MALE
Calculating price...
-
+
Add to Cart
Part
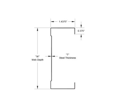
800S300-68-12
8"X 12' STUD 14GA 3" FLANGE
Calculating price...
-
+
Add to Cart
Part
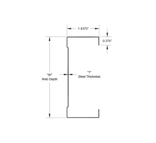
800S300-68-32
8"X 32' STUD 14GA 3" FLANGE
Calculating price...
-
+
Add to Cart
Part
OBC868LS
LAPAZ SLUMP 8 X 6 X 8
Calculating price...
-
+
Add to Cart
Part
OBC4416LS
LAPAZ SLUMP 4 X 4 X 16
Calculating price...
-
+
Add to Cart
Part
SLI4934611
RATCHET STRAP 4" X 30' W/ FLAT HOOK
Calculating price...
-
+
Add to Cart
Part
SIK747032
PAREX VARIANCE PLASTER SHIELD SATIN BASE 8LB
Calculating price...
-
+
Add to Cart
Part
WWIPE-5080
RAIN PONCHO 12 PER BOX
Calculating price...
-
+
Add to Cart
Part
OBC8216NC
NUFAWN CON CAP HVWT 8 X 2 X 16
Calculating price...
-
+
Add to Cart
Part
OBC8816NC
NUFAWN CON BLK HVWT 8 X 8 X 16
Calculating price...
-
+
Add to Cart
Part
EMT138E
FEATHEREDGE 8' MAGNESIUM 3/EA/BX
Calculating price...
-
+
Add to Cart
Part
OBC12816NCM
NUFAWN CON BLK MDWT 12 X 8 X 16
Calculating price...
-
+
Add to Cart
Part
1400S300-68-16
14"X 16' STUD 14GA 3" FLANGE
Calculating price...
-
+
Add to Cart
Part
800S162-68-0903050
8"X 9'3-1/2" STUD 14GA 1-5/8" FLANGE
Calculating price...
-
+
Add to Cart
Part
800S162-68-3201
8"X 32'1" STUD 14GA 1-5/8" FLANGE
Calculating price...
-
+
Add to Cart
Part
800S162-54-2907
8"X 29'7" STUD 16GA 1-5/8" FLANGE
Calculating price...
-
+
Add to Cart
Part
800S300-68-0909
8"X 9'9" STUD 14GA 3" FLANGE
Calculating price...
-
+
Add to Cart
Part
PLY12X8S1
1/2" 4X8 STRUCT 1 0
Calculating price...
-
+
Add to Cart
Part
800S300-68-06
8"X 6' STUD 14GA 3" FLANGE
Calculating price...
-
+
Add to Cart
out of
5
Recently Viewed Products